シンガポールの賃貸物件、居住・投資用不動産を多数ご紹介。シンガポールで投資、移住、駐在、留学をご検討ならフォーランドリアルティネットワーク

フォーランドリアルティネットワーク

【住みやすい都市No.1】シンガポールで日本人にお勧めの賃貸、居住・投資用不動産を多数ご紹介。

【重要】物件価格は2025年1月15日現在の為替相場(1SGD=114.80円)で換算表示

カートを見る

ご滞在先まで送迎します

物件探し、内見はお任せください

現地業者とのサービス比較

シンガポール拠点

シンガポール拠点

Foreland Realty Network
Singapore Pte.Ltd.

9 Raffles Place #58-26,
Republic Plaza,Singapore 048619

日本拠点

日本拠点

フォーランドリアルティ
ネットワークジャパン株式会社

東京都千代田区大手町1-5-1
大手町ファーストスクエア ウエストタワー19階

フィリピン拠点

フィリピン拠点

Foreland Realty Network, Inc.

23F Tower 6789, 6789 Ayala Avenue, 1227 Makati City, Manila

マレーシア提携企業

マレーシア拠点

Aqua White Home Sdn. Bhd.

28-01 ,Integra Tower ,The Intermark ,348 Jalan Tun Razak , Kuala Lumpur


賃貸物件シンガポール賃貸物件 [ 物件詳細情報 ]

0015賃貸物件No
ザ パーク コンドミニアム (The Parc Condominium)

種別(賃貸)コンドミニアム (2011年完成)
エリア クイーンズタウン周辺
交通情報 イーストウェスト線 クレメンティ駅 徒歩24分
学校  日本人学校中学部(0.6km) INTLコミュニティ(0.6km)
日本人幼稚園(0.9km) 日本人学校(cle)(1.4km)
基本情報 総戸数659戸  (24階建て)
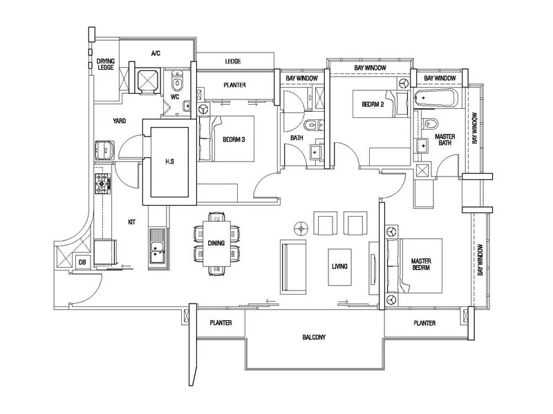
タイプ間取り参考価格専有面積お気に入りに追加
タイプA 2Bed 57万円 (5,000SGD) 91㎡ (980sqft)
タイプB 3Bed 67万円 (5,800SGD) 113㎡ (1,217sqft)
タイプC 4Bed 83万円 (7,200SGD) 132㎡ (1,421sqft)
タイプD 5Bed 92万円 (8,000SGD) 246㎡ (2,648sqft)
※実際の価格は、階数や諸条件などにより上下します。詳細はお問い合わせください。
Pocket

             
所在地 3 WEST COAST WALK
開発会社 CES - West Coast Pte Ltd
設備・条件学校近い、病院近い、プール、ジム、スパ、BBQエリア、フィットネスコーナー
コメント

▼日本人学校小・中学部と幼稚園が1.5km圏内、日本人からの人気も高い築浅コンド。

▼日系飲食店も入居するショッピングモール「クレメンティ・モール」まで直線500m圏。

▼日本人学校小学部クレメンティ校/幼稚園・スクールバス停車ポイント。

Pocket

ページの先頭へ